パークアクシス品川天王洲アイル 【02月03日更新】
仲介手数料無料
新築・築浅
ペット相談
礼金ゼロ
宅配ボックス
フリーレント
| 間取り図 | 階数 | 間取り | 面積 | 賃料 | 管理費 | 敷金 | 礼金 | お気に入り | お問合わせ |
|---|---|---|---|---|---|---|---|---|---|
|
|
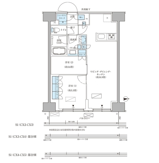
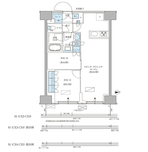
3階 | 2LDK | 50.4㎡ | 235,000円 | 20,000円 | 1.0ヶ月 | 0.0ヶ月 |
|
お問合わせ |
|
|
3階 | 2LDK | 60.53㎡ | 277,000円 | 20,000円 | 1.0ヶ月 | 0.0ヶ月 |
|
お問合わせ |
|
|
3階 | 2DK | 45.57㎡ | 214,000円 | 15,000円 | 1.0ヶ月 | 0.0ヶ月 |
|
お問合わせ |
Outline パークアクシス品川天王洲アイルの詳細
| 住所 | 東京都品川区東品川3-32-27 Map | ||
| 交通 | |||
| 築年月 | 2025年3月 | 総戸数 | 277戸 |
| 階建 | 14階建 | 種別/構造 | RC(鉄筋コンクリート) |
| 賃料 | 143,000円 - 335,000円 | 共益費/管理費 | 12,000円 - 20,000円 |
| 間取り | 1DK - 3LDK | 専有面積 | 29.12㎡ - 62.65㎡ |
| 駐車場 | お問い合わせ下さい | ||
| 特長 | |||
| 設備 | |||
| 備考 |
※こちらのお部屋情報の他にも空き部屋・空き予定のお部屋もございますので、メールやお電話にてお問い合わせください。 ※掲載している物件がご成約している場合もございますのでご了承ください。 ※掲載詳細に相違がある場合は、弊社スタッフの情報を優先させていただきます。 ※ペット相談可の物件やSOHO利用については、お部屋ごとに禁止とされている場合もございますので御注意下さい。お客様に代わって弊社スタッフが確認と交渉を行います。 ※駐車場、駐輪場については、メールやお電話にてお問い合わせください。お客様からのお問い合わせをお待ちしております。 |
||
| URL | 「パークアクシス品川天王洲アイル」の詳細はこちら | ||
| 関連リンク | |||
パークアクシス品川天王洲アイルのご案内
「パークアクシス品川天王洲アイル」は東京都品川区東品川3-32-27にある2025年築の14階建のマンションです。
最寄りの駅は天王洲アイル駅になります。
02月09日現在、空室が80室となっております。
仲介手数料無料でご案内できるお部屋もございます。
パークアクシス品川天王洲アイルは、部屋設備が充実していますので、一人暮らしでもファミリーでも快適な生活を送れる物件となっております。
内見の申し込みや物件・部屋の設備でご不明な点がございましたら、是非お問い合わせくださいませ。
都心エリア高級マンションのお部屋探しは、「スマイリス」へお任せください。
スマイリス (株式会社スマイリス)
TEL:0120-868-666
営業時間:10:00~19:00 定休日:(年中無休)
※地図上に表示される物件のアイコンは付近住所に所在することを表すものであり、実際の物件所在地とは異なる場合がございます。
-
更新02/08キャナルテラス品川京急本線『北品川』徒歩7分
間取り:1K
賃料:155,000円 -
更新02/06リビオ北品川リバーサイドテラス京急本線『新馬場』徒歩6分
間取り:2LDK
賃料:275,000円 - 321,000円新築・築浅 ペット相談 -
更新02/05KDXレジデンス品川シーサイド京急本線『新馬場』徒歩9分
間取り:1K - 1LDK
賃料:125,000円 - 150,000円仲介手数料無料 -
更新02/05オーキッドレジデンス品川京急本線『北品川』徒歩7分
間取り:1K
賃料:137,000円仲介手数料無料 -
更新02/03ダフィット天王洲京急本線『新馬場』徒歩7分
間取り:1R
賃料:115,000円仲介手数料無料 ペット相談 -
更新02/03品川港南テラス東京臨海高速鉄道『天王洲アイル』徒歩0分
間取り:1R - 1LDK
賃料:264,000円 - 432,000円仲介手数料無料 新築・築浅 -
更新01/30パークキューブ東品川東京臨海高速鉄道『天王洲アイル』徒歩7分
間取り:1SLDK - 2SLDK
賃料:197,000円 - 277,000円仲介手数料無料 ペット相談 -
更新01/29バウスフラッツ品川キャナルサイド東京モノレール『天王洲アイル』徒歩8分
間取り:1R - 2LDK
賃料:125,000円 - 310,000円仲介手数料無料
-
更新02/08グランカーサ川口青木町公園JR京浜東北線『西川口』徒歩12分
間取り:3LDK - 4LDK
賃料:180,000円 - 200,000円仲介手数料無料 新築・築浅 ペット相談 -
更新02/08プレジオ川口ASIANJR京浜東北線『川口』徒歩13分
間取り:1LDK
賃料:143,000円 - 150,000円仲介手数料無料 新築・築浅 ペット相談 -
更新02/08RJRプレシア川口JR京浜東北線『川口』徒歩10分
間取り:1LDK - 3LDK
賃料:143,000円 - 228,000円仲介手数料無料 新築・築浅 ペット相談 -
更新02/08コンフォリア碑文谷東急東横線『学芸大学』徒歩12分
間取り:1LDK - 1SLDK
賃料:199,000円 - 205,000円仲介手数料無料 ペット相談 -
更新02/08レジディア市ヶ谷東京メトロ有楽町線『市ケ谷』徒歩5分
間取り:1R - 2LDK
賃料:152,000円 - 257,000円仲介手数料無料 ペット相談 -
更新02/08レジディア中目黒2東急東横線『中目黒』徒歩7分
間取り:1K
賃料:150,000円 - 165,000円仲介手数料無料 -
更新02/08レジディアタワー中目黒東急東横線『中目黒』徒歩3分
間取り:1K
賃料:173,000円仲介手数料無料 ペット相談 -
更新02/08パークアクシス浅草橋JR中央・総武線『浅草橋』徒歩2分
間取り:2LDK
賃料:239,000円仲介手数料無料 ペット相談
高級賃貸・ブランドマンションなら
-
更新02/08ケリア川口JR京浜東北線『川口』徒歩4分
間取り:1R
賃料:93,000円仲介手数料無料 新築・築浅 ペット相談 -
更新02/08ザ・パークハビオ川口JR京浜東北線『川口』徒歩4分
間取り:1R - 1DK
賃料:90,000円 - 110,000円仲介手数料無料 新築・築浅 ペット相談 -
更新02/08グランカーサ川口青木町公園JR京浜東北線『西川口』徒歩12分
間取り:3LDK - 4LDK
賃料:180,000円 - 200,000円仲介手数料無料 新築・築浅 ペット相談 -
更新02/08プレジオ川口ASIANJR京浜東北線『川口』徒歩13分
間取り:1LDK
賃料:137,000円 - 150,000円仲介手数料無料 新築・築浅 ペット相談 -
更新02/08RJRプレシア川口JR京浜東北線『川口』徒歩10分
間取り:1DK - 3LDK
賃料:93,000円 - 228,000円仲介手数料無料 新築・築浅 ペット相談 -
更新02/08アルファコート東あずま東武亀戸線『東あずま』徒歩7分
間取り:1K - 1LDK
賃料:108,000円 - 175,000円仲介手数料無料 -
更新02/08プラウドフラット浅草アベニューつくばエクスプレス『浅草』徒歩7分
間取り:1R - 1LDK
賃料:115,000円 - 186,000円仲介手数料無料 ペット相談 -
更新02/08クリオラベルヴィ元浅草都営大江戸線『新御徒町』徒歩5分
間取り:2LDK
賃料:253,000円 - 258,000円仲介手数料無料 新築・築浅 -
更新02/08クレストコート新宿山吹町東京メトロ有楽町線『江戸川橋』徒歩5分
間取り:1DK - 2LDK
賃料:150,000円 - 265,000円仲介手数料無料 新築・築浅 ペット相談 -
更新02/08JMFレジデンス蔵前二丁目都営大江戸線『蔵前』徒歩3分
間取り:1DK - 2SLDK
賃料:142,000円 - 265,000円仲介手数料無料 新築・築浅 -
更新02/08レジデンス市谷仲之町都営新宿線『曙橋』徒歩4分
間取り:1R
賃料:125,000円新築・築浅 -
更新02/08デュオフラッツ浅草田原町都営大江戸線『蔵前』徒歩4分
間取り:2LDK
賃料:235,000円 - 260,000円仲介手数料無料 新築・築浅 ペット相談
-
更新02/08グランカーサ川口青木町公園JR京浜東北線『西川口』徒歩12分
間取り:3LDK - 4LDK
賃料:180,000円 - 200,000円仲介手数料無料 新築・築浅 ペット相談 -
更新02/08レジディア市ヶ谷東京メトロ有楽町線『市ケ谷』徒歩5分
間取り:1R - 2LDK
賃料:127,000円 - 257,000円仲介手数料無料 ペット相談 -
更新02/08レジディア中目黒2東急東横線『中目黒』徒歩7分
間取り:1K
賃料:150,000円 - 165,000円仲介手数料無料 -
更新02/08レジディアタワー中目黒東急東横線『中目黒』徒歩3分
間取り:1K - 2LDK
賃料:173,000円 - 444,000円仲介手数料無料 ペット相談 -
更新02/08レジディア中落合西武新宿線『下落合』徒歩5分
間取り:1R - 2LDK
賃料:85,000円 - 222,000円仲介手数料無料 ペット相談 -
更新02/08パークアクシス錦糸町ウエスト都営新宿線『菊川』徒歩8分
間取り:1R - 2DK
賃料:119,000円 - 225,000円仲介手数料無料 ペット相談 -
更新02/08コスモグラシア浅草つくばエクスプレス『浅草』徒歩4分
間取り:1LDK - 1SLDK
賃料:157,000円 - 196,000円仲介手数料無料 -
更新02/08アイフラット両国都営大江戸線『両国』徒歩4分
間取り:1K - 2LDK
賃料:126,000円 - 254,000円仲介手数料無料 -
更新02/08シーズンフラッツ錦糸町ウエストJR総武本線『錦糸町』徒歩10分
間取り:2LDK
賃料:205,000円仲介手数料無料 -
更新02/08クオリタス浅草橋JR中央・総武線『浅草橋』徒歩5分
間取り:1DK - 1LDK
賃料:121,000円 - 230,000円仲介手数料無料 ペット相談 -
更新02/08グランパセオ押上東京メトロ半蔵門線『押上』徒歩2分
間取り:1DK
賃料:144,000円新築・築浅 -
更新02/08アレーロ高円寺南東京メトロ丸ノ内線『新高円寺』徒歩2分
間取り:1R
賃料:121,000円 - 124,000円仲介手数料無料
-
更新02/08レジディア錦糸町東京メトロ半蔵門線『錦糸町』徒歩5分
間取り:1K - 1LDK
賃料:151,000円 - 225,000円仲介手数料無料 -
更新02/08パークアクシス住吉東京メトロ半蔵門線『住吉』徒歩6分
間取り:1K - 1DK
賃料:114,000円 - 193,000円仲介手数料無料 ペット相談 -
更新02/08パークリュクス西新宿東京メトロ丸ノ内線『西新宿』徒歩5分
間取り:1LDK
賃料:204,000円ペット相談 -
更新02/08ジオ目黒東京メトロ南北線『目黒』徒歩7分
間取り:1LDK
賃料:225,000円ペット相談 -
更新02/08ザ・パークハウス山吹神楽坂東京メトロ有楽町線『江戸川橋』徒歩4分
間取り:3LDK
賃料:316,000円仲介手数料無料 -
更新02/08ジオ四谷荒木町東京メトロ丸ノ内線『四谷三丁目』徒歩5分
間取り:1LDK
賃料:227,000円 - 303,000円 -
更新02/08クリオラベルヴィ元浅草都営大江戸線『新御徒町』徒歩5分
間取り:2LDK
賃料:253,000円 - 258,000円仲介手数料無料 新築・築浅 -
更新02/08シティタワー目黒JR山手線『目黒』徒歩10分
間取り:1LDK
賃料:320,000円仲介手数料無料 ペット相談 -
更新02/08リヴシティ駒沢大学東急田園都市線『駒沢大学』徒歩4分
間取り:1K
賃料:130,000円 - 136,000円仲介手数料無料 ペット相談 -
更新02/08クレヴィスタ門前仲町東京メトロ東西線『門前仲町』徒歩4分
間取り:1K
賃料:124,000円 - 132,000円仲介手数料無料 ペット相談 -
更新02/08ステラメゾン三軒茶屋東急田園都市線『三軒茶屋』徒歩5分
間取り:1K - 2LDK
賃料:145,000円 - 262,000円仲介手数料無料 -
更新02/08アイル王子ノルドJR京浜東北線『王子』徒歩7分
間取り:1LDK
賃料:165,000円 - 168,000円
-
更新02/08KDX川口幸町レジデンスJR京浜東北線『川口』徒歩10分
間取り:1LDK
賃料:125,000円仲介手数料無料 ペット相談 -
更新02/08ケリア川口JR京浜東北線『川口』徒歩4分
間取り:1R
賃料:93,000円仲介手数料無料 新築・築浅 ペット相談 -
更新02/08ザ・パークハビオ川口JR京浜東北線『川口』徒歩4分
間取り:1R - 1DK
賃料:90,000円 - 110,000円仲介手数料無料 新築・築浅 ペット相談 -
更新02/08グランカーサ川口青木町公園JR京浜東北線『西川口』徒歩12分
間取り:3LDK - 4LDK
賃料:180,000円 - 200,000円仲介手数料無料 新築・築浅 ペット相談 -
更新02/08プレジオ川口ASIANJR京浜東北線『川口』徒歩13分
間取り:1LDK
賃料:137,000円 - 150,000円仲介手数料無料 新築・築浅 ペット相談 -
更新02/08RJRプレシア川口JR京浜東北線『川口』徒歩10分
間取り:1DK - 3LDK
賃料:93,000円 - 228,000円仲介手数料無料 新築・築浅 ペット相談 -
更新02/08コンフォリア碑文谷東急東横線『学芸大学』徒歩12分
間取り:1LDK - 3LDK
賃料:199,000円 - 515,000円仲介手数料無料 ペット相談 -
更新02/08レジディア市ヶ谷東京メトロ有楽町線『市ケ谷』徒歩5分
間取り:1R - 2LDK
賃料:127,000円 - 257,000円仲介手数料無料 ペット相談 -
更新02/08レジディアタワー中目黒東急東横線『中目黒』徒歩3分
間取り:1K - 2LDK
賃料:173,000円 - 444,000円仲介手数料無料 ペット相談 -
更新02/08パークアクシス浅草橋『』徒歩分
間取り:2LDK
賃料:239,000円仲介手数料無料 ペット相談 -
更新02/08レジディア中落合西武新宿線『下落合』徒歩5分
間取り:1R - 2LDK
賃料:85,000円 - 222,000円仲介手数料無料 ペット相談 -
更新02/08パークアクシス住吉東京メトロ半蔵門線『住吉』徒歩6分
間取り:1K - 1DK
賃料:114,000円 - 193,000円仲介手数料無料 ペット相談
パークアクシス品川天王洲アイルは、最寄り駅の「天王洲アイル駅」から徒歩で7分です。設備に24hセキュリティ、宅配ボックス、オートロック、防犯カメラなどがあり、女性の一人暮らしでもファミリーでも安心快適に暮らせる物件です。
パークアクシス品川天王洲アイルは、現在空室が80室となっています。
内見をご検討の場合にはスマイリスまで気軽にご相談ください。