ペット相談の賃貸物件一覧

建物 2,188 棟 部屋 9,930
表示棟数:

パークアクシス御成門

仲介手数料無料

ペット相談

宅配ボックス

賃料 365,000円 管理費 0円
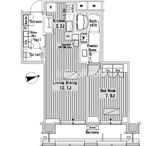
間取り 1LDK 面積 55.16㎡
住所 東京都港区西新橋3-20-1 築年月 2011年10月
交通

都営三田線御成門駅』 徒歩4

JR山手線新橋駅』 徒歩10

東京メトロ銀座線新橋駅』 徒歩10

東京メトロ日比谷線神谷町駅』 徒歩10

間取り図 階数 間取り 面積 賃料 管理費 敷金 礼金 お気に入り お問合わせ
1LDK 17階 1LDK 55.16㎡ 365,000円 0円 1.0ヶ月 1.0ヶ月
全ての空室情報を表示 その他-2 閉じる
建物 2,188棟中  2185~2185棟表示
お気に入りに追加しました
お気に入りを解除しました
検索条件を保存しました

沿線、エリアの選択

検索条件

賃料
広さ
築年数
駅徒歩
階数
間取り
建物特徴・設備
部屋特徴・設備

該当件数9,930