仲介手数料無料の賃貸物件一覧

建物 2,982 棟 部屋 13,321
表示棟数:

メイクスデザイン芝公園 【04月22日更新】

仲介手数料無料

ペット相談

敷金ゼロ

宅配ボックス

賃料 152,000円 - 162,000円 管理費 11,000円
間取り 1R 面積 22.29㎡ - 28.63㎡
住所 東京都港区芝1-13-21 築年月 2018年3月
交通

都営浅草線三田駅』 徒歩7

都営三田線三田駅』 徒歩7

JR山手線浜松町駅』 徒歩10

JR京浜東北線浜松町駅』 徒歩10

東京モノレール浜松町駅』 徒歩10

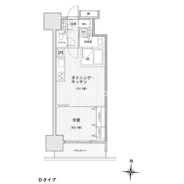
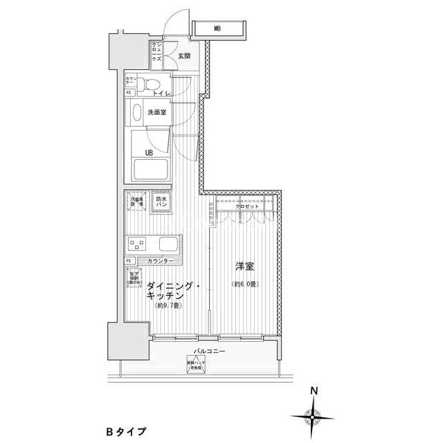
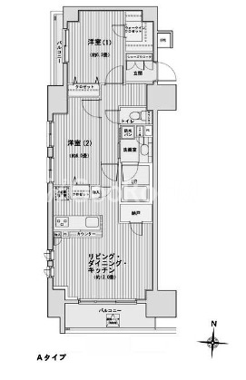
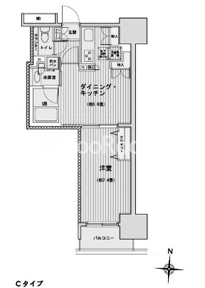
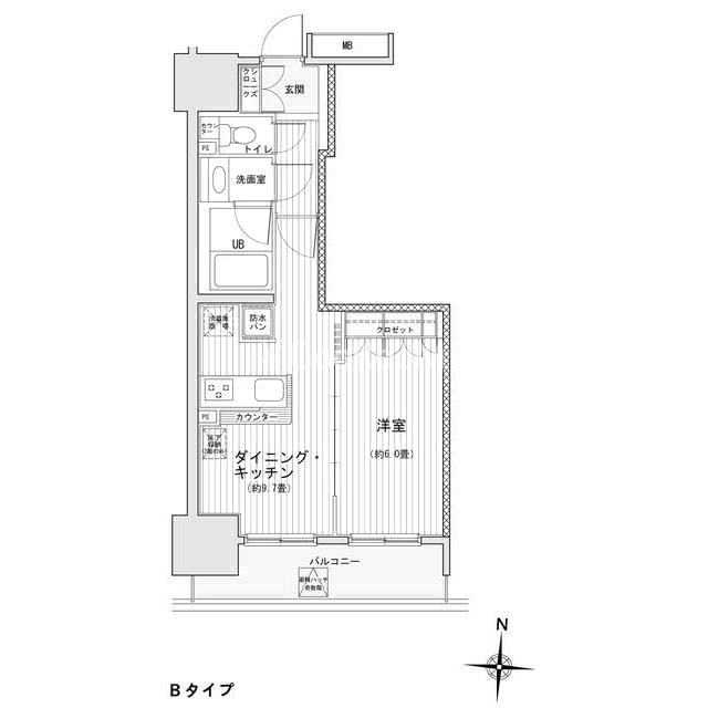
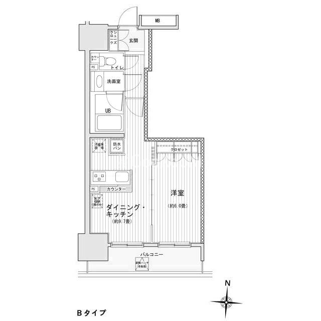
間取り図 階数 間取り 面積 賃料 管理費 敷金 礼金 お気に入り お問合わせ
1R 2階 1R 28.63㎡ 162,000円 11,000円 0.0ヶ月 1.0ヶ月
1R 10階 1R 22.29㎡ 152,000円 11,000円 0.0ヶ月 1.0ヶ月
1R 11階 1R 22.29㎡ 154,000円 11,000円 0.0ヶ月 1.0ヶ月
全ての空室情報を表示 その他0 閉じる
建物 2,982棟中  94~94棟表示
お気に入りに追加しました
お気に入りを解除しました
検索条件を保存しました

沿線、エリアの選択

検索条件

賃料
広さ
築年数
駅徒歩
階数
間取り
建物特徴・設備
部屋特徴・設備

該当件数13,321