JR京浜東北線の賃貸物件一覧

ヴォーガコルテ御徒町 【04月29日更新】

分譲賃貸

ペット相談

敷金ゼロ

宅配ボックス

賃料 158,000円 管理費 12,000円
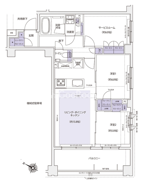
間取り 1LDK 面積 43.11㎡
住所 東京都台東区東上野2-8-2 築年月 2014年10月
交通

JR山手線御徒町駅』 徒歩7

都営大江戸線新御徒町駅』 徒歩5

東京メトロ銀座線上野駅』 徒歩6

東京メトロ日比谷線仲御徒町駅』 徒歩7

JR京浜東北線上野駅』 徒歩10

間取り図 階数 間取り 面積 賃料 管理費 敷金 礼金 お気に入り お問合わせ
1LDK 2階 1LDK 43.11㎡ 158,000円 12,000円 0.0ヶ月 1.0ヶ月
全ての空室情報を表示 その他-2 閉じる
建物 407棟中  198~198棟表示
お気に入りに追加しました
お気に入りを解除しました
検索条件を保存しました

路線の確認・変更

現在選択中の路線
JR京浜東北線
駅を選択

検索条件

賃料
広さ
築年数
駅徒歩
階数
間取り
建物特徴・設備
部屋特徴・設備

該当件数1,801