東京メトロ千代田線の賃貸物件一覧

プラウド文京千駄木 【04月07日更新】

分譲賃貸

ペット相談

宅配ボックス

賃料 280,000円 管理費 0円
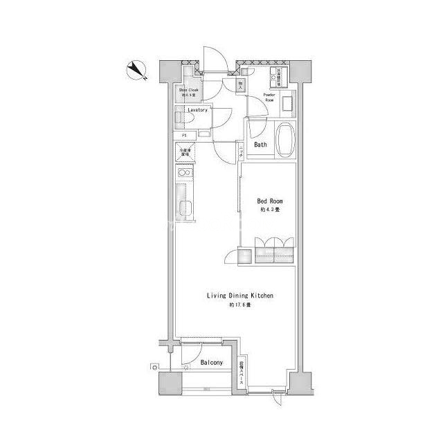
間取り 2LDK 面積 56.50㎡
住所 東京都文京区千駄木2-1-12 築年月 2017年11月
交通

東京メトロ千代田線千駄木駅』 徒歩5

東京メトロ千代田線根津駅』 徒歩6

東京メトロ南北線東大前駅』 徒歩9

間取り図 階数 間取り 面積 賃料 管理費 敷金 礼金 お気に入り お問合わせ
2LDK 9階 2LDK 56.5㎡ 280,000円 0円 1.0ヶ月 1.0ヶ月
全ての空室情報を表示 その他-2 閉じる
建物 321棟中  285~285棟表示
お気に入りに追加しました
お気に入りを解除しました
検索条件を保存しました

路線の確認・変更

現在選択中の路線
東京メトロ千代田線
駅を選択

検索条件

賃料
広さ
築年数
駅徒歩
階数
間取り
建物特徴・設備
部屋特徴・設備

該当件数1,002