都営浅草線の賃貸物件一覧

建物 635 棟 部屋 1,961
表示棟数:

芝浦スクエアハイツ 【04月21日更新】

宅配ボックス

賃料 336,000円 管理費 15,000円
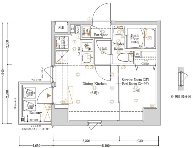
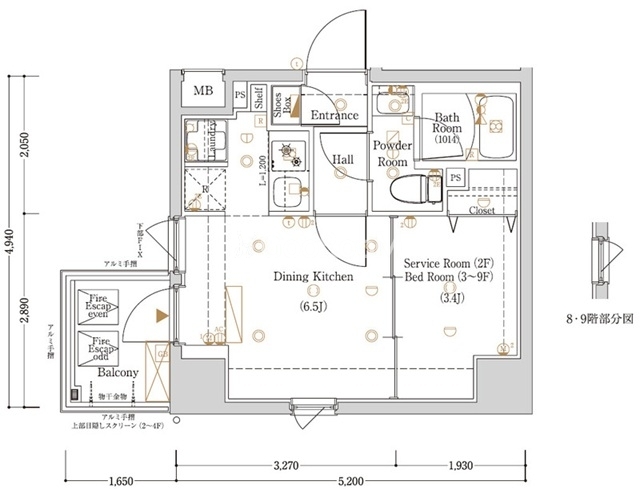
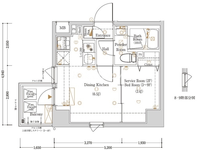
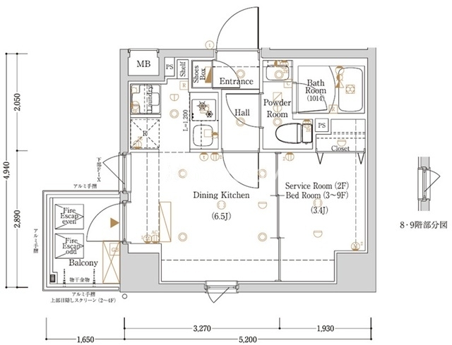
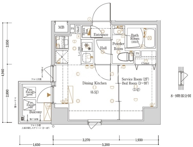
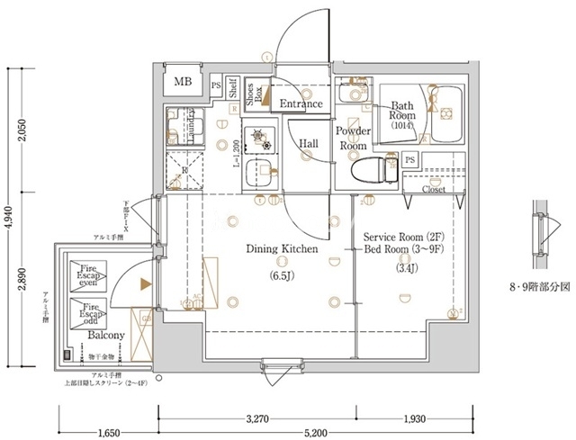
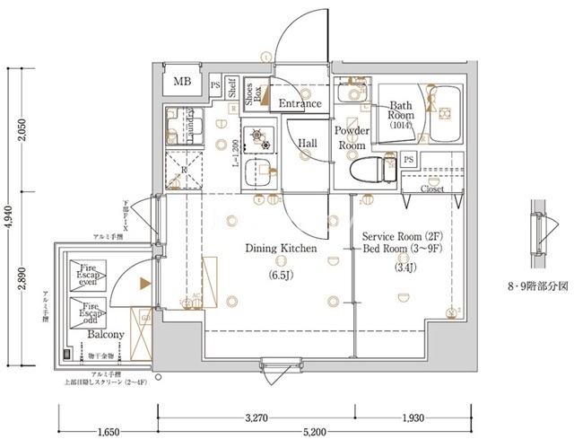
間取り 3SLDK 面積 92.44㎡
住所 東京都港区芝浦4-9-35 築年月 1989年2月
交通

JR山手線田町駅』 徒歩10

都営三田線三田駅』 徒歩12

都営浅草線三田駅』 徒歩12

ゆりかもめ芝浦ふ頭駅』 徒歩15

JR京浜東北線田町駅』 徒歩10

間取り図 階数 間取り 面積 賃料 管理費 敷金 礼金 お気に入り お問合わせ
3SLDK 20階 3SLDK 92.44㎡ 336,000円 15,000円 1.0ヶ月 2.0ヶ月
全ての空室情報を表示 その他-2 閉じる
建物 635棟中  220~220棟表示
お気に入りに追加しました
お気に入りを解除しました
検索条件を保存しました

路線の確認・変更

現在選択中の路線
都営浅草線
駅を選択

検索条件

賃料
広さ
築年数
駅徒歩
階数
間取り
建物特徴・設備
部屋特徴・設備

該当件数1,961