高井戸駅の高級賃貸マンション一覧|スマイリスの7ページ目
閲覧履歴
0
お気に入り
0
掲載物件数
11,933
件
部屋数
18,091
件
0120-868-666
営業時間:10:00~19:00(年中無休)
お問合わせ
エリア
から探す
沿線
から探す
ブランド
から探す
店舗紹介
会社案内
会社概要
GooRooM渋谷店
GooRooM神田本店
GooRooM浅草吾妻橋支店
スマイリス
地域・路線から探す
高井戸駅の高級賃貸マンション一覧
高井戸駅の賃貸物件一覧
建物
9
棟 部屋
32
室
京王井の頭線の駅から探す
渋谷
神泉
駒場東大前
池ノ上
下北沢
新代田
東松原
明大前
永福町
西永福
浜田山
高井戸
富士見ヶ丘
久我山
三鷹台
井の頭公園
吉祥寺
表示棟数:
10
20
30
50
« 前へ
1
2
...
5
6
7
8
9
次へ »
クオリタス浜田山
【03月23日更新】
仲介手数料無料
ペット相談
敷金ゼロ
宅配ボックス
フリーレント
賃料
123,000円 - 136,000円
管理費
10,000円
間取り
1DK
面積
29.24㎡ - 30.08㎡
住所
東京都
杉並区
高井戸東3-33-18
築年月
2022年8月
交通
京王井の頭線
『
高井戸駅
』 徒歩
11
分
京王井の頭線
『
浜田山駅
』 徒歩
12
分
ペット相談
デザイナーズマンション
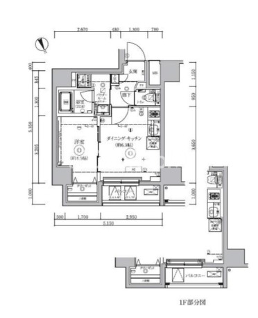
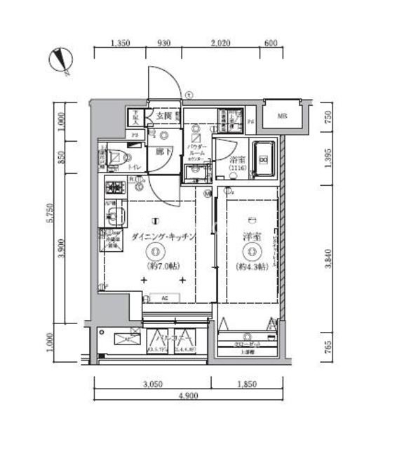
間取り図
階数
間取り
面積
賃料
管理費
敷金
礼金
お気に入り
お問合わせ
2階
1DK
29.52㎡
123,000円
10,000円
0.0ヶ月
0.5ヶ月
お問合わせ
8階
1DK
29.24㎡
134,000円
10,000円
0.0ヶ月
0.5ヶ月
お問合わせ
9階
1DK
30.08㎡
136,000円
10,000円
0.0ヶ月
0.5ヶ月
お問合わせ
全ての空室情報を表示 その他
0
件
閉じる
建物
9
棟中 7~7棟表示
« 前へ
1
2
...
5
6
7
8
9
次へ »
お気に入りに追加しました
お気に入りを解除しました
検索条件を保存しました
駅の確認・変更
現在選択中の駅
高井戸駅
沿線を変更
検索条件
賃料
下限なし
11万円
15万円
20万円
25万円
30万円
40万円
50万円
60万円
80万円
100万円
150万円
200万円
~
11万円
15万円
20万円
25万円
30万円
40万円
50万円
60万円
80万円
100万円
150万円
200万円
上限なし
敷金なし
礼金なし
仲介手数料無料
フリーレント
広さ
下限なし
30㎡
40㎡
50㎡
60㎡
70㎡
80㎡
100㎡
120㎡
150㎡
200㎡
250㎡
300㎡
~
30㎡
40㎡
50㎡
60㎡
70㎡
80㎡
100㎡
120㎡
150㎡
200㎡
250㎡
300㎡
上限なし
築年数
新築/1年内
3年以内
5年以内
7年以内
10年以内
15年以内
指定しない
駅徒歩
1分以内
3分以内
5分以内
7分以内
10分以内
15分以内
指定しない
階数
指定しない
1階のみ
2階以上
5階以上
10階以上
15階以上
20階以上
30階以上
最上階
間取り
1R
1K
1DK
1LDK
2K
2DK
2LDK
3K
3DK
3LDK
4K
4DK
4LDK
5K
5DK
5LDK
建物特徴・設備
楽器可
分譲賃貸
ペット相談
SOHO・事務所可
低層マンション
タワーマンション
ブランドシリーズ
デザイナーズマンション
ヴィンテージマンション
部屋特徴・設備
ロフト
角部屋
最上階
南向き
浄水器
床暖房
2階以上
IHコンロ
エアコン
2口コンロ
3口コンロ
独立洗面台
浴室乾燥機
バルコニー
ガスコンロ
食器洗浄機
TVドアフォン
追い炊きバス
フローリング
WIクローゼット
専用庭(テラス)
ディスポーザー
バス・トイレ別
室内洗濯機置場
ペット可(1匹迄)
リノベーション
家具・家電付き
シャワートイレ
ペット可(2匹迄)
24h換気システム
システムキッチン
ルーフバルコニー
駐車場付き(賃料込)
ドラム式洗濯乾燥機
カウンターキッチン
キャッシュバック対象住戸
該当件数
32
件
この条件で検索
Copyright (C) GooRoom AllRightsReserved.