ラグゼナ船堀
仲介手数料無料
新築・築浅
ペット相談
敷金ゼロ
礼金ゼロ
宅配ボックス
フリーレント
| 間取り図 | 階数 | 間取り | 面積 | 賃料 | 管理費 | 敷金 | 礼金 | お気に入り | お問合わせ |
|---|---|---|---|---|---|---|---|---|---|
|
|
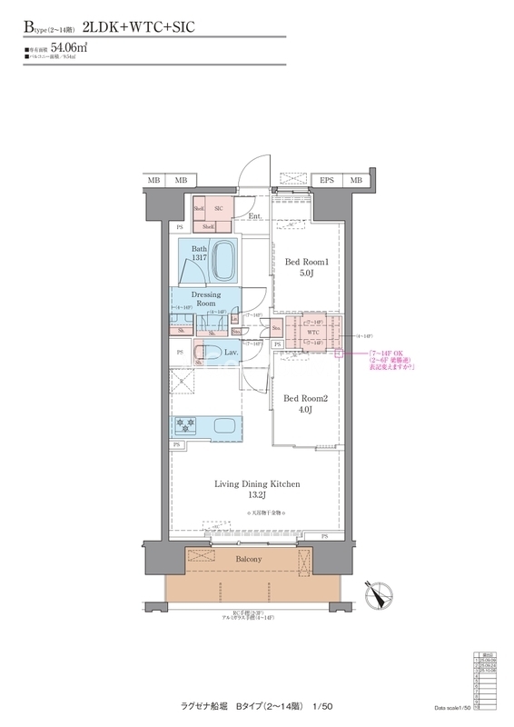
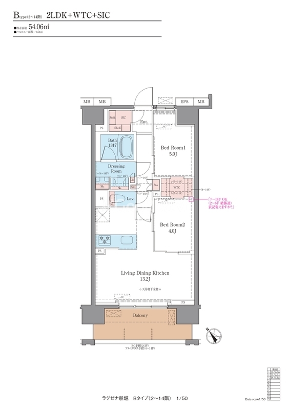
13階 | 2LDK | 54.06㎡ | 174,000円 | 20,000円 | 0.0ヶ月 | 0.0ヶ月 |
|
お問合わせ |
|
|
15階 | 2LDK | 54.06㎡ | 205,000円 | 20,000円 | 0.0ヶ月 | 0.0ヶ月 |
|
お問合わせ |
|
|
15階 | 2LDK | 58.22㎡ | 210,000円 | 20,000円 | 0.0ヶ月 | 0.0ヶ月 |
|
お問合わせ |
Outline ラグゼナ船堀の詳細
| 住所 | 東京都江戸川区松江2-1 Map | ||
| 交通 | |||
| 築年月 | 2026年2月 | 総戸数 | 42戸 |
| 階建 | 15階建 | 種別/構造 | RC(鉄筋コンクリート) |
| 賃料 | 174,000円 - 210,000円 | 共益費/管理費 | 20,000円 |
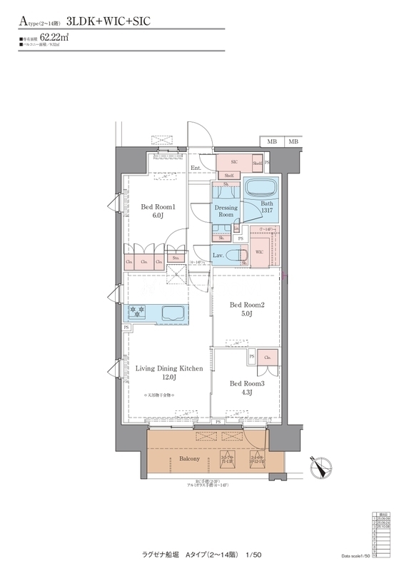
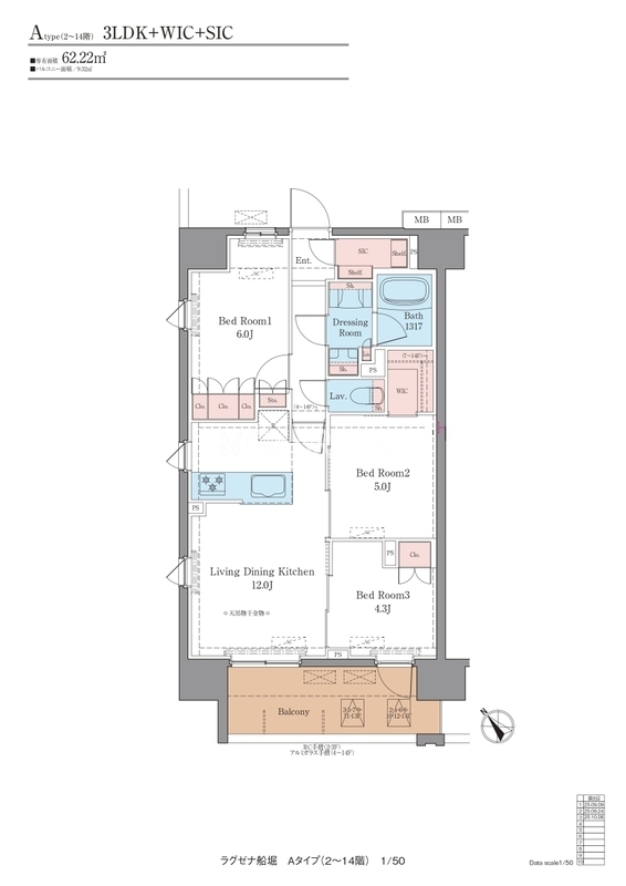
| 間取り | 2LDK | 専有面積 | 54.06㎡ - 58.22㎡ |
| 駐車場 | お問い合わせ下さい | ||
| 特長 | |||
| 設備 | |||
| 備考 |
※こちらのお部屋情報の他にも空き部屋・空き予定のお部屋もございますので、メールやお電話にてお問い合わせください。 ※掲載している物件がご成約している場合もございますのでご了承ください。 ※掲載詳細に相違がある場合は、弊社スタッフの情報を優先させていただきます。 ※ペット相談可の物件やSOHO利用については、お部屋ごとに禁止とされている場合もございますので御注意下さい。お客様に代わって弊社スタッフが確認と交渉を行います。 ※駐車場、駐輪場については、メールやお電話にてお問い合わせください。お客様からのお問い合わせをお待ちしております。 |
||
| URL | 「ラグゼナ船堀」の詳細はこちら | ||
| 関連リンク | |||
ラグゼナ船堀のご案内
「ラグゼナ船堀」は東京都江戸川区松江2-1にある2026年築の15階建のマンションです。
最寄りの駅は一之江駅になります。
05月25日現在、空室が3室となっております。
仲介手数料無料でご案内できるお部屋もございます。
ラグゼナ船堀は、部屋設備が充実していますので、一人暮らしでもファミリーでも快適な生活を送れる物件となっております。
内見の申し込みや物件・部屋の設備でご不明な点がございましたら、是非お問い合わせくださいませ。
都心エリア高級マンションのお部屋探しは、「スマイリス」へお任せください。
スマイリス (株式会社スマイリス)
TEL:0120-868-666
営業時間:10:00~19:00 定休日:(年中無休)
※地図上に表示される物件のアイコンは付近住所に所在することを表すものであり、実際の物件所在地とは異なる場合がございます。
-
更新05/24プライムアーバン亀有JR常磐線『亀有』徒歩5分
間取り:2LDK
賃料:200,000円 - 207,000円仲介手数料無料 -
更新05/24ジオエント中野弥生町東京メトロ丸ノ内線『中野新橋』徒歩8分
間取り:1LDK
賃料:193,000円 - 194,000円仲介手数料無料 -
更新05/24アイフラット方南町東京メトロ丸ノ内線『方南町』徒歩6分
間取り:1LDK
賃料:205,000円仲介手数料無料 ペット相談 -
更新05/24エスレジデンス板橋大山東武東上線『下板橋』徒歩9分
間取り:2LDK
賃料:210,000円仲介手数料無料 新築・築浅 ペット相談 -
更新05/21プライムガーデン若木東武東上線『東武練馬』徒歩10分
間取り:2LDK
賃料:178,000円 - 189,000円仲介手数料無料 新築・築浅 ペット相談 -
更新05/24ログ上野駅前JR山手線『上野』徒歩3分
間取り:1LDK
賃料:205,000円ペット相談 -
更新05/24ドゥーエ一之江都営新宿線『一之江』徒歩10分
間取り:2LDK
賃料:184,000円 - 185,000円仲介手数料無料 新築・築浅 -
更新05/24プライムブリス中野富士見町1東京メトロ丸ノ内線『中野富士見町』徒歩4分
間取り:2LDK
賃料:209,000円仲介手数料無料 新築・築浅
高級賃貸・ブランドマンションなら
-
更新05/24エスセナーリオ本郷三丁目都営大江戸線『本郷三丁目』徒歩8分
間取り:1R - 2LDK
賃料:117,000円 - 410,000円仲介手数料無料 新築・築浅 -
更新05/24エスレジデンス板橋大山東武東上線『下板橋』徒歩9分
間取り:1K - 2LDK
賃料:103,500円 - 213,000円仲介手数料無料 新築・築浅 ペット相談 -
更新05/24フロンティアレジデンス板橋都営三田線『板橋区役所前』徒歩3分
間取り:1K - 2SLDK
賃料:130,000円 - 300,000円仲介手数料無料 新築・築浅 ペット相談 -
更新05/24リアナアートパーク西葛西東京メトロ東西線『西葛西』徒歩7分
間取り:1DK - 2LDK
賃料:122,000円 - 225,000円仲介手数料無料 新築・築浅 ペット相談 -
更新05/24プライムガーデン若木東武東上線『東武練馬』徒歩10分
間取り:1LDK - 3LDK
賃料:128,000円 - 220,000円仲介手数料無料 新築・築浅 ペット相談 -
更新05/24アルティザ葛西東京メトロ東西線『葛西』徒歩5分
間取り:2K
賃料:108,000円 - 109,000円仲介手数料無料 新築・築浅 -
更新05/24アーバンパークお花茶屋京成本線『お花茶屋』徒歩12分
間取り:1K
賃料:91,000円 - 93,000円仲介手数料無料 新築・築浅 -
更新05/24ドゥーエ一之江都営新宿線『一之江』徒歩10分
間取り:2LDK
賃料:184,000円 - 185,000円仲介手数料無料 新築・築浅 -
更新05/24プライムブリス中野富士見町1東京メトロ丸ノ内線『中野富士見町』徒歩4分
間取り:2LDK - 3LDK
賃料:209,000円 - 238,000円仲介手数料無料 新築・築浅 -
更新05/24エスレジデンス高島平asolea都営三田線『西台』徒歩7分
間取り:1DK - 2LDK
賃料:121,500円 - 202,000円仲介手数料無料 新築・築浅 ペット相談 -
更新05/24グランパセオ祐天寺イースト東急東横線『祐天寺』徒歩10分
間取り:1K
賃料:107,000円仲介手数料無料 新築・築浅 -
更新05/24ザ・パークハウスグラン三番町26東京メトロ半蔵門線『半蔵門』徒歩7分
間取り:2LDK - 3LDK
賃料:700,000円 - 1,300,000円仲介手数料無料 新築・築浅 ペット相談
-
更新05/24ラ ドゥセールお花茶屋1京成本線『お花茶屋』徒歩10分
間取り:1K
賃料:87,000円 - 90,000円仲介手数料無料 -
更新05/24エスレジデンス板橋大山東武東上線『下板橋』徒歩9分
間取り:1K - 2LDK
賃料:103,500円 - 213,000円仲介手数料無料 新築・築浅 ペット相談 -
更新05/24フロンティアレジデンス板橋都営三田線『板橋区役所前』徒歩3分
間取り:1K - 2SLDK
賃料:130,000円 - 300,000円仲介手数料無料 新築・築浅 ペット相談 -
更新05/24プライムガーデン若木東武東上線『東武練馬』徒歩10分
間取り:1LDK - 3LDK
賃料:128,000円 - 220,000円仲介手数料無料 新築・築浅 ペット相談 -
更新05/24ログ上野駅前JR山手線『上野』徒歩3分
間取り:1K - 1LDK
賃料:139,000円 - 215,000円ペット相談 -
更新05/24アルティザ葛西東京メトロ東西線『葛西』徒歩5分
間取り:2K
賃料:108,000円 - 109,000円仲介手数料無料 新築・築浅 -
更新05/24アーバンパークお花茶屋京成本線『お花茶屋』徒歩12分
間取り:1K
賃料:91,000円 - 93,000円仲介手数料無料 新築・築浅 -
更新05/24エスレジデンス高島平asolea都営三田線『西台』徒歩7分
間取り:1DK - 2LDK
賃料:121,500円 - 202,000円仲介手数料無料 新築・築浅 ペット相談 -
更新05/24グランパセオ祐天寺イースト東急東横線『祐天寺』徒歩10分
間取り:1K
賃料:107,000円仲介手数料無料 新築・築浅 -
更新05/24ルフィット神宮北参道東京メトロ副都心線『北参道』徒歩1分
間取り:1R - 1LDK
賃料:157,000円 - 345,000円仲介手数料無料 ペット相談 -
更新05/24レジディア広尾Ⅱ東京メトロ日比谷線『広尾』徒歩7分
間取り:1K - 1LDK
賃料:148,000円 - 263,000円仲介手数料無料 ペット相談 -
更新05/24KDXレジデンス吉祥寺京王井の頭線『吉祥寺』徒歩15分
間取り:1R - 1DK
賃料:137,000円 - 145,000円仲介手数料無料
-
更新05/24メイクスデザイン板橋区役所前都営三田線『板橋区役所前』徒歩8分
間取り:1K
賃料:114,000円仲介手数料無料 ペット相談 -
更新05/24プラウドフラット板橋本町都営三田線『板橋本町』徒歩4分
間取り:2LDK
賃料:219,000円仲介手数料無料 ペット相談 -
更新05/24アプリーレ東中野JR中央・総武線『東中野』徒歩5分
間取り:2LDK
賃料:218,000円仲介手数料無料 ペット相談 -
更新05/24ログ上野駅前JR山手線『上野』徒歩3分
間取り:1K - 1LDK
賃料:139,000円 - 215,000円ペット相談 -
更新05/24グラーサ白金高輪東京メトロ南北線『白金高輪』徒歩3分
間取り:1LDK
賃料:285,000円 -
更新05/24ライオンズマンション広尾南東京メトロ日比谷線『広尾』徒歩7分
間取り:1LDK
賃料:198,000円 -
更新05/24ラ・コリーヌ神宮前東京メトロ千代田線『明治神宮前』徒歩7分
間取り:1K
賃料:155,000円仲介手数料無料 -
更新05/24クオス銀座エスト・プルミエ東京メトロ銀座線『銀座』徒歩12分
間取り:1R
賃料:190,000円仲介手数料無料 ペット相談 -
更新05/24恵比寿ガーデンテラス壱番館JR山手線『恵比寿』徒歩10分
間取り:1LDK
賃料:290,000円 -
更新05/24ヴェルトウォーターフロント都営大江戸線『勝どき』徒歩5分
間取り:1K
賃料:95,000円 - 130,000円仲介手数料無料 -
更新05/24ザ・パークハウス上野池之端レジデンス東京メトロ千代田線『根津』徒歩3分
間取り:1K
賃料:135,000円 -
更新05/24ザ・パークハウスグラン三番町26東京メトロ半蔵門線『半蔵門』徒歩7分
間取り:2LDK - 3LDK
賃料:700,000円 - 1,300,000円仲介手数料無料 新築・築浅 ペット相談
-
更新05/24メイクスデザイン板橋区役所前都営三田線『板橋区役所前』徒歩8分
間取り:1K
賃料:114,000円仲介手数料無料 ペット相談 -
更新05/24プラウドフラット板橋本町都営三田線『板橋本町』徒歩4分
間取り:2LDK
賃料:219,000円仲介手数料無料 ペット相談 -
更新05/24アプリーレ東中野JR中央・総武線『東中野』徒歩5分
間取り:2LDK
賃料:218,000円仲介手数料無料 ペット相談 -
更新05/24フレンシア高円寺北JR中央・総武線『高円寺』徒歩8分
間取り:1K - 1LDK
賃料:134,000円 - 222,000円ペット相談 -
更新05/24アイフラット方南町東京メトロ丸ノ内線『方南町』徒歩6分
間取り:1LDK
賃料:205,000円 - 217,000円仲介手数料無料 ペット相談 -
更新05/24エスレジデンス板橋大山東武東上線『下板橋』徒歩9分
間取り:1K - 2LDK
賃料:103,500円 - 213,000円仲介手数料無料 新築・築浅 ペット相談 -
更新05/24フロンティアレジデンス板橋都営三田線『板橋区役所前』徒歩3分
間取り:1K - 2SLDK
賃料:130,000円 - 300,000円仲介手数料無料 新築・築浅 ペット相談 -
更新05/24リアナアートパーク西葛西東京メトロ東西線『西葛西』徒歩7分
間取り:1DK - 2LDK
賃料:122,000円 - 225,000円仲介手数料無料 新築・築浅 ペット相談 -
更新05/24プライムガーデン若木東武東上線『東武練馬』徒歩10分
間取り:1LDK - 3LDK
賃料:128,000円 - 220,000円仲介手数料無料 新築・築浅 ペット相談 -
更新05/24ログ上野駅前JR山手線『上野』徒歩3分
間取り:1K - 1LDK
賃料:139,000円 - 215,000円ペット相談 -
更新05/24エスレジデンス高島平asolea都営三田線『西台』徒歩7分
間取り:1DK - 2LDK
賃料:121,500円 - 202,000円仲介手数料無料 新築・築浅 ペット相談 -
更新05/24クオス銀座エスト・プルミエ東京メトロ銀座線『銀座』徒歩12分
間取り:1R
賃料:190,000円仲介手数料無料 ペット相談
設備に24hセキュリティ、宅配ボックス、オートロック、防犯カメラなどがあり、女性の一人暮らしでもファミリーでも安心快適に暮らせる物件です。
ラグゼナ船堀は、現在空室が3室となっています。
内見をご検討の場合にはスマイリスまで気軽にご相談ください。