マンション
Mansion
ウィーウィル八丁堀 602 1LDK 【04月16日更新】
仲介手数料無料
ペット相談
宅配ボックス
| 賃料
管理費等 |
260,000円
10,000円 |
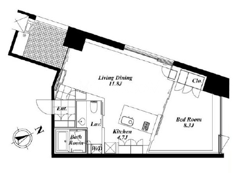
間取り | 1LDK | 専有面積 | 53.6㎡ |
|---|---|---|---|---|---|
| 敷金/礼金 | 1.0ヶ月 / 1.0ヶ月 | 方位 | 西 |
« PREV
1 /
NEXT »
東京メトロ日比谷線 「八丁堀」
駅から徒歩1分
「ウィーウィル八丁堀」の物件ページです。
西向き、 広さ53.6㎡のお部屋です。
「ウィーウィル八丁堀 602」のお部屋。バス・トイレ別、等の設備も充実!都心エリアの高級マンション物件なら、スマイリス
更新日:2026-04-16
西向き、 広さ53.6㎡のお部屋です。
「ウィーウィル八丁堀 602」のお部屋。バス・トイレ別、等の設備も充実!都心エリアの高級マンション物件なら、スマイリス
更新日:2026-04-16
ウィーウィル八丁堀602
に関するお問合わせはこちらから
Outline 部屋概要
| 賃料 | 260,000円 | 管理費/共益費 | 10,000円 |
| 敷金/礼金 | 1.0ヶ月 / 1.0ヶ月 | 更新料 | 1.0ヶ月 |
| 間取り | 1LDK | 専有面積 | 53.6㎡ |
| 階数 | 6階 / 16階建 | 方位 | 西 |
| フリーレント | 0.0ヶ月 | 取引態様 | 媒介 |
| 入居時期 | 相談 | 仲介手数料 | 0.0ヶ月 |
| 設備 | |||
Outline ウィーウィル八丁堀の詳細
| 住所 | 東京都中央区八丁堀4-11-2 Map | ||
| 交通 | |||
| 築年月 | 2008年3月 | 総戸数 | 55戸 |
| 階建 | 16階建 | 種別/構造 | RC(鉄筋コンクリート) |
| 賃料 | 260,000円 - 330,000円 | 共益費/管理費 | 10,000円 |
| 間取り | 1LDK | 専有面積 | 53.60㎡ - 66.03㎡ |
| 駐車場 | お問い合わせ下さい | ||
| 特長 | |||
| 設備 | |||
| 備考 |
※こちらのお部屋情報の他にも空き部屋・空き予定のお部屋もございますので、メールやお電話にてお問い合わせください。 ※掲載している物件がご成約している場合もございますのでご了承ください。 ※掲載詳細に相違がある場合は、弊社スタッフの情報を優先させていただきます。 ※ペット相談可の物件やSOHO利用については、お部屋ごとに禁止とされている場合もございますので御注意下さい。お客様に代わって弊社スタッフが確認と交渉を行います。 ※駐車場、駐輪場については、メールやお電話にてお問い合わせください。お客様からのお問い合わせをお待ちしております。 |
||
Map
地図
※地図上に表示される物件のアイコンは付近住所に所在することを表すものであり、実際の物件所在地とは異なる場合がございます。
ウィーウィル八丁堀602
に関するお問合わせはこちらから
-
更新04/21アクアアンビシャス八丁堀JR京葉線『八丁堀』徒歩1分
間取り:1LDK
賃料:193,000円仲介手数料無料 -
更新04/21京橋レジデンス都営浅草線『宝町』徒歩4分
間取り:1LDK
賃料:242,000円 -
更新04/21パートナーシップアパートメント東京メトロ日比谷線『茅場町』徒歩3分
間取り:2DK - 2LDK
賃料:215,000円 - 233,000円仲介手数料無料 -
更新04/21ロディア日本橋茅場町東京メトロ日比谷線『八丁堀』徒歩8分
間取り:1LDK
賃料:203,000円 - 219,000円仲介手数料無料 -
更新04/21パークキューブ八丁堀東京メトロ日比谷線『八丁堀』徒歩1分
間取り:1LDK - 1SLDK
賃料:199,000円 - 259,000円仲介手数料無料 ペット相談 -
更新04/21クリアルプレミア八丁堀東京メトロ日比谷線『八丁堀』徒歩4分
間取り:1K
賃料:136,000円 - 145,000円仲介手数料無料 ペット相談 -
更新04/21モディア銀座イースト東京メトロ有楽町線『新富町』徒歩3分
間取り:1LDK - 2LDK
賃料:225,000円 - 325,000円仲介手数料無料 新築・築浅 -
更新04/21コンフォリア・リヴ八丁堀東京メトロ日比谷線『八丁堀』徒歩4分
間取り:1K - 1LDK
賃料:163,000円 - 270,000円仲介手数料無料 新築・築浅 ペット相談
-
更新04/09ロイジェント潮見JR京葉線『潮見』徒歩8分
間取り:1LDK
賃料:300,000円仲介手数料無料 新築・築浅 ペット相談 -
更新04/17プロスペクト・グラーサ広尾東京メトロ日比谷線『広尾』徒歩8分
間取り:1LDK
賃料:270,000円仲介手数料無料 ペット相談 -
更新04/21パークコート神宮前東京メトロ副都心線『北参道』徒歩3分
間取り:1LDK
賃料:300,000円ペット相談 -
更新04/21ディームス渋谷本町都営大江戸線『西新宿五丁目』徒歩4分
間取り:1SLDK - 2LDK
賃料:280,000円 - 282,000円仲介手数料無料 -
更新04/21ロイヤルパークスタワー南千住東京メトロ日比谷線『南千住』徒歩5分
間取り:1SLDK - 2LDK
賃料:269,000円 - 313,000円仲介手数料無料 ペット相談 -
更新04/21レジディアタワー上池袋JR山手線『大塚』徒歩9分
間取り:1LDK - 2LDK
賃料:270,000円 - 329,000円仲介手数料無料 ペット相談 -
更新04/21アトラスブランズタワー三河島JR常磐線『三河島』徒歩1分
間取り:3LDK
賃料:300,000円ペット相談 -
更新04/21アイフラット渋谷西原京王線『幡ヶ谷』徒歩2分
間取り:1LDK
賃料:274,000円仲介手数料無料 新築・築浅 ペット相談
お気に入りに追加しました
お気に入りを解除しました
東京都心の
高級賃貸・ブランドマンションなら
高級賃貸・ブランドマンションなら
-
更新04/21ロイジェント潮見JR京葉線『潮見』徒歩8分
間取り:1LDK
賃料:166,000円 - 300,000円仲介手数料無料 新築・築浅 ペット相談 -
更新04/21アークマーク大塚JR山手線『大塚』徒歩6分
間取り:1DK
賃料:132,000円 - 141,000円仲介手数料無料 新築・築浅 ペット相談 -
更新04/21アイフラット渋谷西原京王線『幡ヶ谷』徒歩2分
間取り:1K - 3LDK
賃料:154,000円 - 359,000円仲介手数料無料 新築・築浅 ペット相談 -
更新04/21パークシティ中野 ザ タワー ブリーズJR中央・総武線『中野』徒歩5分
間取り:1DK - 3LDK
賃料:187,000円 - 698,000円新築・築浅 ペット相談 -
更新04/21アーバンブリーズ恵比寿JR山手線『恵比寿』徒歩7分
間取り:1LDK - 2LDK
賃料:227,000円 - 680,000円仲介手数料無料 新築・築浅 ペット相談 -
更新04/21ルミーク北品川京急本線『新馬場』徒歩4分
間取り:1DK - 1LDK
賃料:139,000円 - 224,000円仲介手数料無料 新築・築浅 ペット相談 -
更新04/21ラグゼナ用賀東急田園都市線『用賀』徒歩1分
間取り:1R - 2LDK
賃料:139,000円 - 328,000円仲介手数料無料 新築・築浅 ペット相談 -
更新04/21オルタナ中野JR中央線(快速)『中野』徒歩8分
間取り:1DK - 3LDK
賃料:150,000円 - 395,000円仲介手数料無料 新築・築浅 -
更新04/21ラグゼナ船堀都営新宿線『一之江』徒歩0分
間取り:2LDK
賃料:174,000円 - 210,000円仲介手数料無料 新築・築浅 ペット相談 -
更新04/21エスレジデンス板橋大山東武東上線『下板橋』徒歩9分
間取り:2LDK
賃料:214,000円 - 215,000円仲介手数料無料 新築・築浅 ペット相談 -
更新04/21ザ・パークハビオ中野富士見町ガーデン東京メトロ丸ノ内線『中野富士見町』徒歩4分
間取り:1K - 2LDK
賃料:137,000円 - 285,000円仲介手数料無料 新築・築浅 ペット相談 -
更新04/21ルフレプレミアム新小岩JR中央・総武線『新小岩』徒歩4分
間取り:1K
賃料:123,000円仲介手数料無料 新築・築浅 ペット相談
-
更新04/21ロイジェント潮見JR京葉線『潮見』徒歩8分
間取り:1LDK
賃料:166,000円 - 300,000円仲介手数料無料 新築・築浅 ペット相談 -
更新04/21ロイヤルパークスタワー南千住東京メトロ日比谷線『南千住』徒歩5分
間取り:1R - 4LDK
賃料:168,000円 - 519,000円仲介手数料無料 ペット相談 -
更新04/21レジディアタワー上池袋JR山手線『大塚』徒歩9分
間取り:1R - 2SLDK
賃料:163,000円 - 413,000円仲介手数料無料 ペット相談 -
更新04/21レジディア新中野東京メトロ丸ノ内線『新中野』徒歩6分
間取り:1K
賃料:100,000円仲介手数料無料 -
更新04/21レジディア恵比寿JR山手線『恵比寿』徒歩7分
間取り:1R
賃料:142,000円 - 163,000円仲介手数料無料 -
更新04/21ルネサンスコート中野JR中央・総武線『中野』徒歩8分
間取り:1K
賃料:136,000円仲介手数料無料 -
更新04/21ルミーク北品川京急本線『新馬場』徒歩4分
間取り:1DK - 1LDK
賃料:139,000円 - 224,000円仲介手数料無料 新築・築浅 ペット相談 -
更新04/21ラグゼナ用賀東急田園都市線『用賀』徒歩1分
間取り:1R - 2LDK
賃料:139,000円 - 328,000円仲介手数料無料 新築・築浅 ペット相談 -
更新04/21ログ上野駅前JR山手線『上野』徒歩3分
間取り:1K - 1LDK
賃料:139,000円 - 220,000円ペット相談 -
更新04/21オルタナ中野JR中央線(快速)『中野』徒歩8分
間取り:1DK - 3LDK
賃料:150,000円 - 395,000円仲介手数料無料 新築・築浅 -
更新04/21ラグゼナ船堀都営新宿線『一之江』徒歩0分
間取り:2LDK
賃料:174,000円 - 210,000円仲介手数料無料 新築・築浅 ペット相談 -
更新04/21エスレジデンス板橋大山東武東上線『下板橋』徒歩9分
間取り:2LDK
賃料:214,000円 - 215,000円仲介手数料無料 新築・築浅 ペット相談
-
更新04/21レジデンス代々木公園小田急小田原線『代々木八幡』徒歩5分
間取り:1LDK
賃料:240,000円仲介手数料無料 -
更新04/21ヴォーガコルテ笹塚アジールコート京王線『笹塚』徒歩5分
間取り:1K
賃料:87,000円ペット相談 -
更新04/21パークコート神宮前東京メトロ副都心線『北参道』徒歩3分
間取り:1LDK
賃料:300,000円ペット相談 -
更新04/21シティハウス東麻布都営大江戸線『赤羽橋』徒歩4分
間取り:1K
賃料:150,000円ペット相談 -
更新04/21アイスイート東中野JR中央・総武線『東中野』徒歩3分
間取り:1R - 1LDK
賃料:122,000円 - 229,000円仲介手数料無料 -
更新04/21宮益坂ビルディング ザ・渋谷レジデンスJR山手線『渋谷』徒歩2分
間取り:1LDK
賃料:345,000円 -
更新04/21シェフルール文京茗荷谷東京メトロ丸ノ内線『茗荷谷』徒歩3分
間取り:1LDK - 2LDK
賃料:210,000円 - 340,000円 -
更新04/21リライズガーデン西新井スカイレジデンス東武伊勢崎線『梅島』徒歩3分
間取り:3LDK
賃料:235,000円 -
更新04/21アトラスブランズタワー三河島JR常磐線『三河島』徒歩1分
間取り:3LDK
賃料:300,000円ペット相談 -
更新04/21ザ・パークハウス上石神井レジデンス西武新宿線『上石神井』徒歩11分
間取り:3LDK
賃料:219,000円 -
更新04/21スパシエスタイル練馬春日町都営大江戸線『練馬春日町』徒歩5分
間取り:1R - 1K
賃料:85,000円 - 96,000円仲介手数料無料 ペット相談 -
更新04/21ラグゼナ平和台東京メトロ有楽町線『平和台』徒歩6分
間取り:1K - 2LDK
賃料:121,000円 - 190,000円仲介手数料無料
-
更新04/21ロイジェント潮見JR京葉線『潮見』徒歩8分
間取り:1LDK
賃料:166,000円 - 300,000円仲介手数料無料 新築・築浅 ペット相談 -
更新04/21アークマーク大塚JR山手線『大塚』徒歩6分
間取り:1DK
賃料:132,000円 - 141,000円仲介手数料無料 新築・築浅 ペット相談 -
更新04/21プロスペクト・グラーサ広尾JR山手線『恵比寿』徒歩9分
間取り:1K - 1LDK
賃料:134,000円 - 270,000円仲介手数料無料 ペット相談 -
更新04/21ヴォーガコルテ笹塚アジールコート京王線『笹塚』徒歩5分
間取り:1K
賃料:87,000円ペット相談 -
更新04/21プライマル大泉学園西武池袋線『大泉学園』徒歩2分
間取り:1LDK
賃料:151,000円仲介手数料無料 ペット相談 -
更新04/21パークコート神宮前東京メトロ副都心線『北参道』徒歩3分
間取り:1LDK
賃料:300,000円ペット相談 -
更新04/21シティハウス東麻布都営大江戸線『赤羽橋』徒歩4分
間取り:1K
賃料:150,000円ペット相談 -
更新04/21パークハビオ渋谷神山町JR山手線『渋谷』徒歩8分
間取り:1K
賃料:136,000円仲介手数料無料 ペット相談 -
更新04/21デュオステージ大塚JR山手線『大塚』徒歩9分
間取り:1DK
賃料:143,000円仲介手数料無料 ペット相談 -
更新04/21ロイヤルパークスタワー南千住東京メトロ日比谷線『南千住』徒歩5分
間取り:1R - 4LDK
賃料:168,000円 - 519,000円仲介手数料無料 ペット相談 -
更新04/21ラ・トゥール渋谷宇田川JR山手線『渋谷』徒歩7分
間取り:1LDK - 2LDK
賃料:920,000円 - 1,080,000円仲介手数料無料 ペット相談 -
更新04/21レジディアタワー上池袋JR山手線『大塚』徒歩9分
間取り:1R - 2SLDK
賃料:163,000円 - 413,000円仲介手数料無料 ペット相談